Makléř: Hanauer Tomáš
Telefon: 608 168 ...
E-mail: tomas@h ...
Zobrazit celý kontaktTelefon: 608 168 918
E-mail: tomas@hanyreality.cz
Nemovitost nabízí
Hanauer reality s.r.o.
Masarykova 1047/35, 400 01 Ústí nad Labem
Zobrazit kontakt na RK
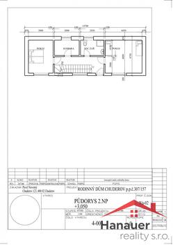
Krásná cena 4.350,-Kč za metr čtvereční včetně DPH a pozemek může být váš. Nabízíme stavební pozemek o rozloze 1 950 m2 v atraktivní lokalitě Chuderov - je to skvělá příležitostí pro toho z vás, kdo má zájem o okamžitou výstavbu. Cena 4.350 Kč/m2 je za pozemek, ale jelikož je na pozemku zavedena elektřina, vrtaná studna, pozemek je oplocený, a je k dispozici platné stavební povolení společně se stavební dokumentací, je nutno řešit tuto skutečnost mimo cenu za pozemek, tedy samostatně a jelikož pozemek nevlastní fyzická osoba, musíme k ceně připočíst také 21% DPH. Je zde také vybudována společná čistička odpadních vod (ČOV), která se nachází pouze 50 m od pozemku. Lokalita na okraji obce nabízí klidné prostředí s celodenním slunečním svitem, přírodní scenérií a dostatkem zeleně. . Pozemek je nově oplocen a za ním se nachází sad, který lze pronajmout nebo odkoupit. Díky výborné dostupnosti, kdy je dálnice D8 vzdálená pouhých 15 minut autem, jedná se o ideální místo pro rodiny hledající harmonii mezi přírodou a kvalitním bydlením. Domluvte si prohlídku a získejte více informací o tomto pozemku. <a href="https://www.eurobydleni.cz/domy/rodinny-dum/karlovy-vary/obec-zlutice/prodej/"><strong>Prodej rodinného domu Žlutice</strong></a>
Prodej, Pozemek pro stavbu RD, bytů, Libouchec
Hledáte místo, kde můžete žít v klidu, obklopeni přírodou, a přitom s dobrou dostupností do města? Právě jste ho našli. Nabízíme k prodeji krásný…
Prodej pozemků k bydlení, 1940 m2, Ústí nad Labem - Střekov
Nabízíme soubor dvou pozemků o celkové výměře 1940 m2 v klidné části města Ústí nad Labem - Střekov. Pozemky jsou rovinaté až mírně svažité a…
Prodej stavebního pozemku Chuderov na Eurobydleni.cz